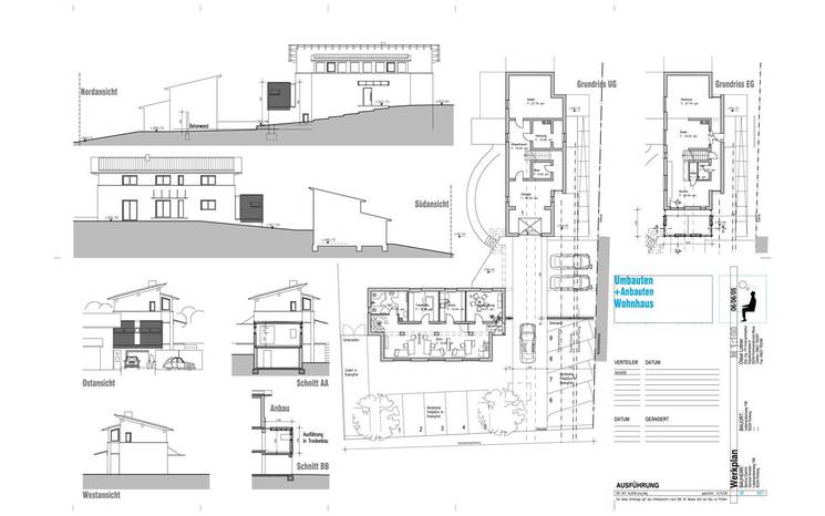
Bauen im Bestand erfordert an den Planer hohe Kompetenz nicht nur in konstruktiven und bauphysikalischen Zusammenhängen sondern auch im Erkennen möglicher Grundrisslösungen die weit über die üblichen Standards reichen.
Planungsaufgaben im Bestand gehören zu meinen Stärken.